Antron Way, Mabe Burnthouse, TR10
- 3 beds
- 3 Bathrooms
- 1 Reception
THE PROPERTY
So different from what was originally built, this detached family home has been extended and updated and is stunningly presented. Looking like a new home and presented like a "show house" there are three double bedrooms on the ground floor with all three having modern en-suites. On the first floor there is a huge open -plan living room that is almost 800 square feet in size and full of natural light thanks to windows on three side. To the front there is a far reaching view across countryside to the sea and to the rear is a bank of windows with views over the garden. The kitchen is superb and a delight for any chef. Landscaped gardens front and rear plus off road parking for possibly five vehicles and a large garage. This property is unbelievably well presented and we would highly recommend internal viewing. We have produced a detailed walk-through, talk-through video tour for your interest.
THE LOCATION
Mabe is a popular village with useful everyday facilities, including a Premier shop & Post Office. The village is conveniently located one mile from University Of Exeter (Penryn Campus), approx 1.5 miles from Penryn, and just over three miles from Falmouth Harbour Town and seaside. The village has an active community with an excellent nursery & primary school, community centre, regular bus services and a church. Asda supermarket is within easy access of the property on the outskirts of Penryn, as is Argal Reservoir a beautiful spot for walking and enjoying the countryside. Penryn is the next immediate town offering further amenities and less than half a mile away is Penryn Business Park offering a wide range of corporate and independent businesses including the popular Verdant Brewery hosting events and popular comedy nights, B&Q, Rowes Cornish Bakers & Starbucks, along with community sports hubs such as Penryn Football, Rugby & Cricket Clubs. Falmouth has been shaped and influenced by its strong connection to the sea and harbour, combining a fascinating maritime heritage and modern creativity, Falmouth is building a name for itself as one of the South West's leading cultural and festival destinations. Penryn Train branch provides links into Falmouth Town and beaches and also onto the Cathedral City of Truro where it links with the national rail network including London Paddington and other principal cities. Truro is approximately 8 miles away which offers national high street shops, independent shops and some of the largest employers in Cornwall such as Royal Cornwall Hospital and Cornwall Council County Hall. 21 Antron Way is situated to enjoy convenient access to many amenities, beautiful coastline and beaches, businesses and education in the area.
ACCOMMODATION IN DETAIL
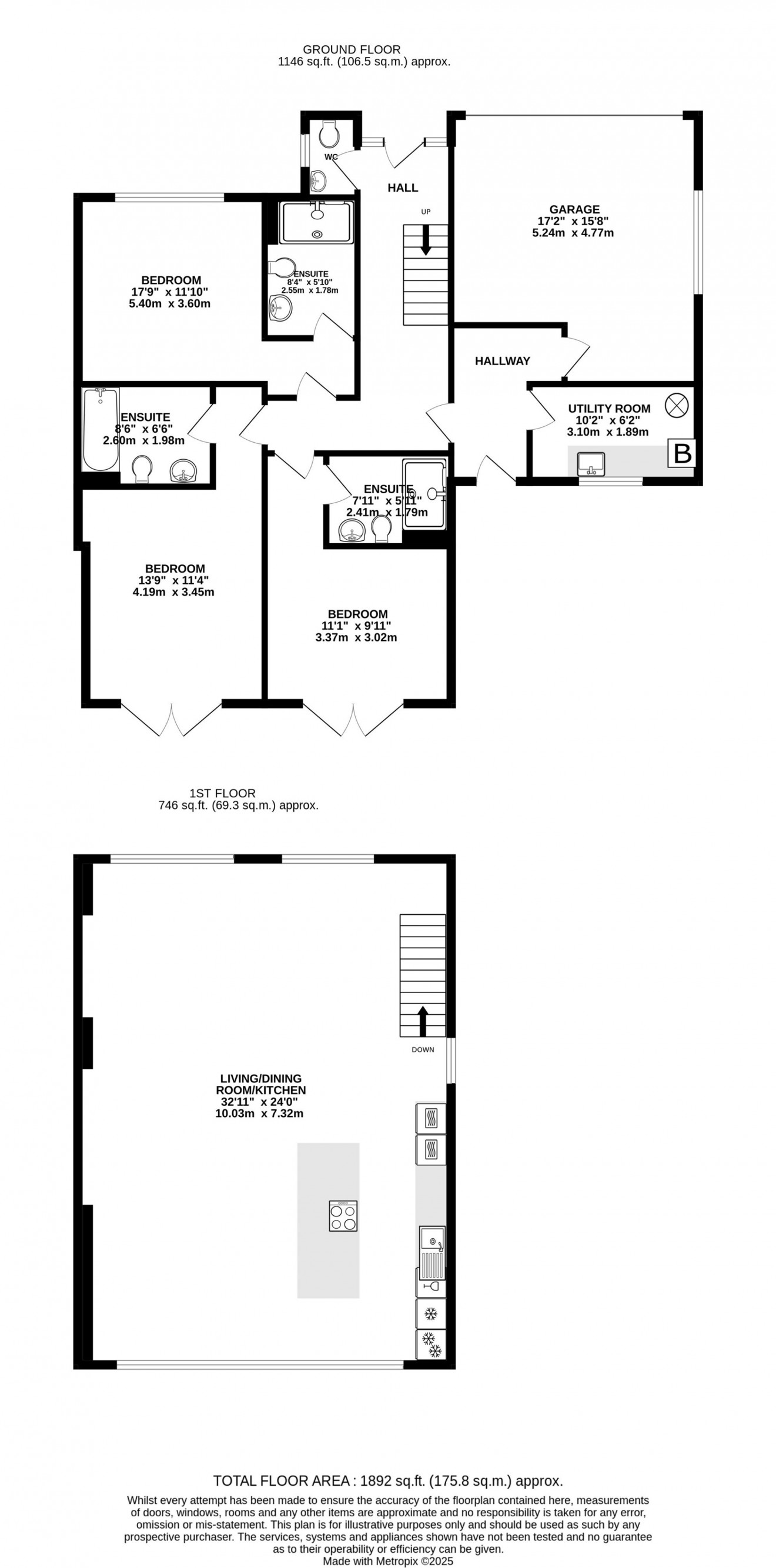
(ALL MEASUREMENTS ARE APPROXIMATE) Once in through the front door you enter into a welcoming and large hallway. On the ground floor there are three en-suite bedrooms, utility room, access to the garage and rear garden plus a WC but it's upstairs where we start with the.....
OPEN PLAN KITCHEN/LIVING/DINING ROOM
Totally open -plan and almost 800² ft in size, this amazing space has defined areas of seating, dining and kitchen. The kitchen is amazing, Neff and Smeg built-in appliances plus a 3m x 1.2m island with beautiful white quartz worktop. To the rear is an almost full width of windows with views over the rear garden and to the front there is a large window with far reaching sea and countryside views. A further window to the side means this large room is flooded with natural light.
GROUND FLOOR
Open tread staircase is complimented by glass balustrades descends down to the...
ENTRANCE HALLWAY
Doors to three en-suite bedrooms, utility room, cloakroom WC and access to the garage and rear garden.
BEDROOM ONE
With French doors out to, and looking over the rear garden, it's a fine view to wake up to. Freestanding mirrored wardrobe.
EN SUITE
Lovely presentation with a modern white suite comprising "P" shaped bath with shower over and glass screen to the side, W/C and hand basin on vanity unit. Large mirror. Fully tiled walls.
BEDROOM TWO
Large window to the front with far reaching country and sea view. Wall width of freestanding mirrored wardrobes. Door to.....
EN SUITE
Large walk-in shower cubicle with glazed screen, rainfall head and spray attachment. WC, wash basin on vanity unit and tiling to the same quality as that in bedroom one.
BEDROOM THREE
French doors out to the rear garden. Freestanding mirrored wardrobes.
EN SUITE
Large walk-in shower cubicle with glazed screen, rainfall head and spray attachment. WC, wash basin on vanity unit. Tiled walls.
UTILITY ROOM
Window overlooking the rear garden. Sink unit plus space and plumbing for washing machine and tumble dryer. Gas fired boiler fuelling radiator central heating. Modern pressurised hot water tank.
