Summerheath, Mabe Burnthouse, TR10
- 2 beds
- 1 Bathroom
- 1 Reception
THE PROPERTY
Selling a home like this excites us, as we know how it can be transformed with energy and some expenditure, into something rather special.
28 Summerheath would be a wonderful project for a practical buyer, willing to uplift its tired interior and mend its leaking conservatory, and give it a new lease of life.
Summerheath is a well conceived 1990s built development, with number 28 enjoying a favoured head of the close position.
It’s a semi-detached bungalow with two bedrooms, beyond which is the conservatory, leading via French doors onto the terrace and garden.
A Worcester gas boiler fuels radiator central heating and hot water supply and windows are uPVC double glazed.
To the side is a driveway to tuck in two cars. Leading through a gate to the enclosed, established and overgrown rear garden with a large, paved terrace and relative privacy.
The property is being sold with no onward chain and a competitive guide asking price.
We look forward to selling this one and keeping an eye on its new chapter in life!
THE LOCATION
Summerheath is a popular development built by Messrs Wimpey Homes, set on the edge of Mabe village and within a minute or two walk of the primary school.
Mabe is a popular village with useful everyday facilities, including a Premier shop & Post Office. The village is conveniently located one mile from University Of Exeter (Penryn Campus), approx 1.5 miles from Penryn, and just over three miles from Falmouth Harbour Town and seaside. The village has an active community with an excellent nursery & primary school, community centre, regular bus services and a church. Asda supermarket is within easy access of the property on the outskirts of Penryn, as is Argal Reservoir: a beautiful spot for walking and enjoying the countryside. Penryn is the next immediate town offering further amenities and less than half a mile away is Penryn Business Park providing a wide range of corporate and independent businesses including the popular Verdant Brewery hosting events and popular comedy nights and B&Q, Rowes Cornish Bakers & Starbucks, along with community sports hubs such as Penryn Football, Rugby & Cricket Clubs. Falmouth has been shaped and influenced by its strong connection to the sea and harbour, combining a fascinating maritime heritage and modern creativity, Falmouth is building a name for itself as one of the South West's leading cultural and festival destinations. Penryn Train branch provides links into Falmouth Town and beaches and also onto the Cathedral City of Truro where it links with the national rail network, including London Paddington and other principal cities.
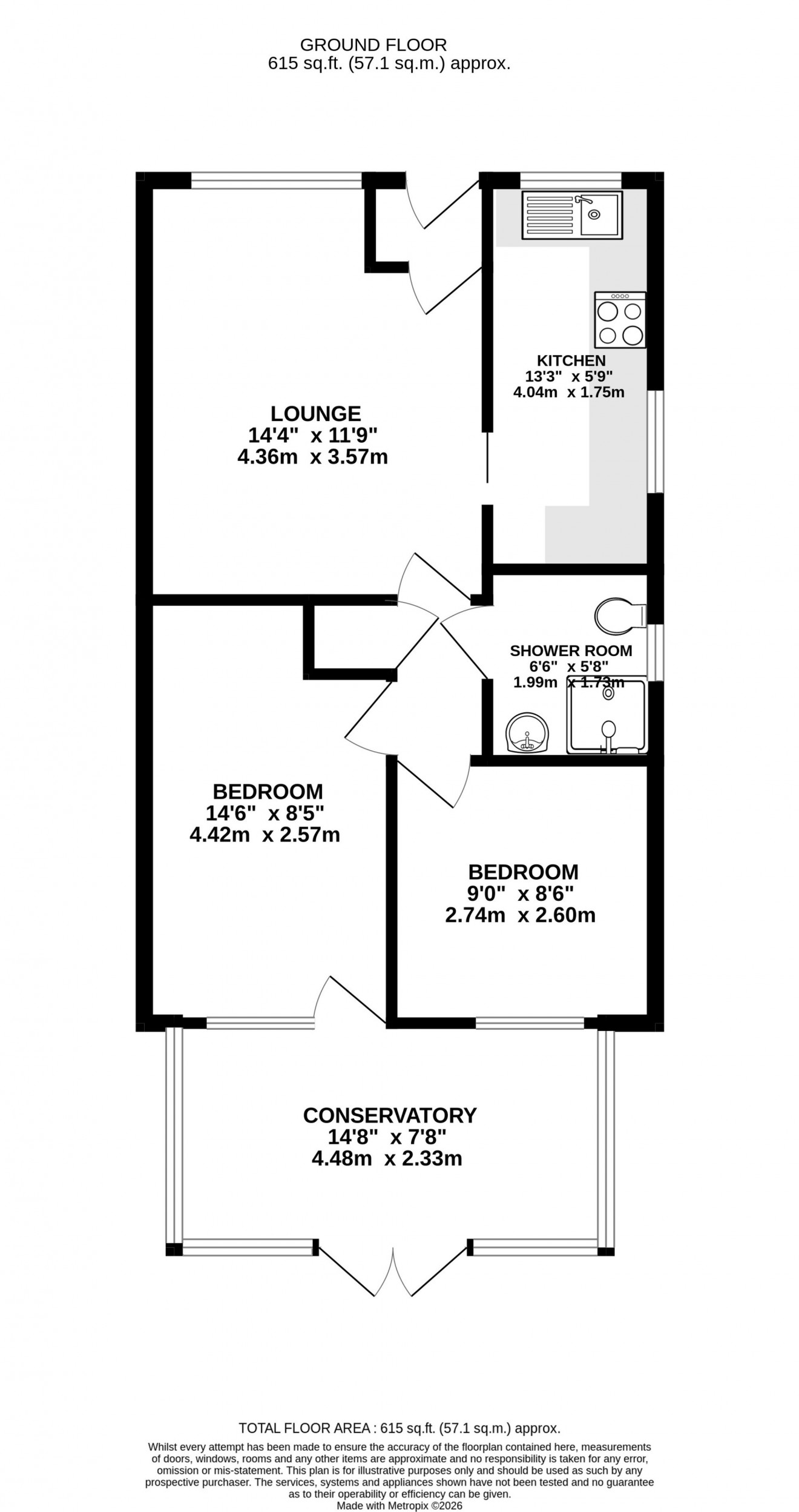
ACCOMMODATION IN DETAIL
(ALL MEASUREMENTS ARE APPROXIMATE) Canopy with light uPVC double glazed panel effect front door into..
ENTRANCE
Base cupboard housing gas and electric meters and tripping switches. Glazed door too…
LIVING ROOM
uPVC double glazed window to front. Two radiators. Central heating thermostatic control, panel door to inner hallway. Sliding panel door to…
KITCHEN
Modern, cream flush fronted range of base and eye level cupboards with stainless steel handles. Roll top work surfaces. Built in oven, grill and gas hob with extraction. Stainless steel sink and drainer. Mixer tap. Space and plumbing for washing machine, tumble dryer and fridge freezer. uPVC double glazed window to front and side. Tile floor and splashback. Worcester mains gas boiler fuelling radiator central heating and hot water supply.
INNER HALLWAY
Panel door to two bedrooms, shower room/WC and airing/store cupboard. Slatted shelves. Radiator.
BEDROOM ONE
Built in wardrobe and cupboard space. Radiator. uPVC double glazed window and door into conservatory.
BEDROOM TWO
uPVC double glazed window into conservatory. Radiator.
CONSERVATORY – Requiring repair or replacement.
uPVC double glazed, tile floor. Radiator. French doors out onto the terrace and garden. Monopitch roof.
SHOWER ROOM/WC
Corner shower cubicle with electric shower, WC and hand basin with cupboard underneath. Heated towel radiator. Obscure uPVC double glazed window to side. Access to loft.
