Harbour Village, Daniels Sail Loft Harbour Village, TR10
- 3 beds
- 1 Bathroom
- 1 Reception
THE PROPERTY
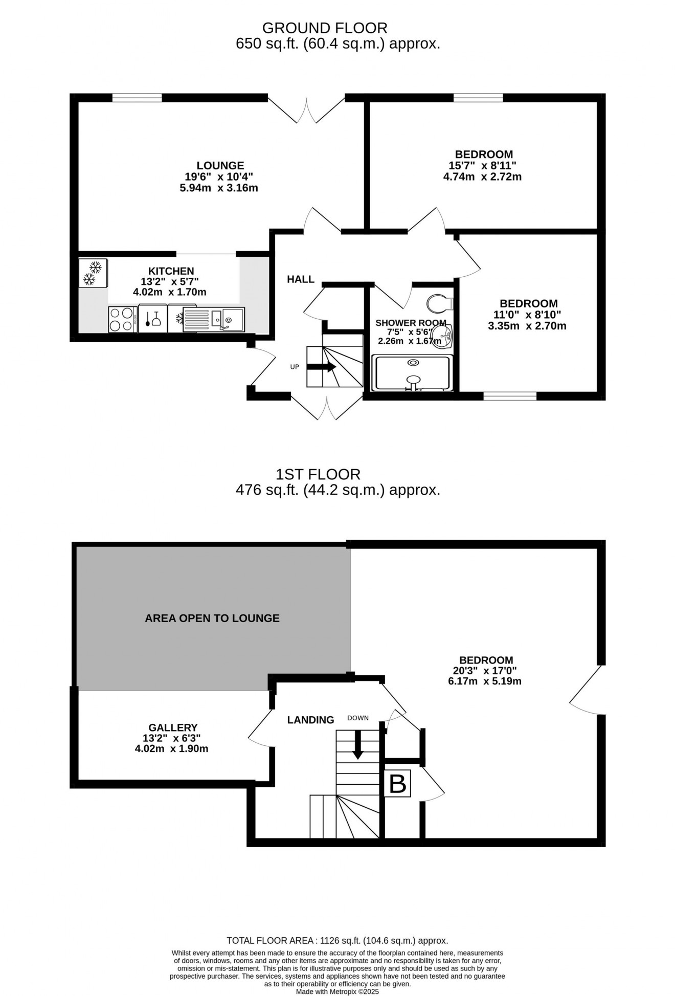
Apartment 6, Daniel Sail Loft, is a stunning penthouse conversion within a magnificent Grade II listed granite, riverside building in Penryn’s sought-after Harbour Village. Set across the top two floors, this spacious three-bedroom duplex boasts exceptional southerly and West facing views across the river, town, viaduct, and surrounding woodland. Full of character and charm, the property retains many original features including exposed beams, shuttered windows, and whitewashed granite walls. A galleried mezzanine adds flexibility for a study or hobby space, while French doors open from the generous living area to enjoy the waterfront setting. Residents benefit from a designated parking space, use of a dinghy park and slipway, and proximity to local wildlife including swans, kingfishers, and more. Offered with vacant possession and no onward chain, this unique apartment presents a superb opportunity as a permanent home, holiday retreat, or investment.
THE LOCATION
Penryn is one of Cornwall’s oldest and most historic market towns, full of charm and character. With a vibrant community, excellent local facilities including nurseries, primary and secondary schools, and strong transport links via bus and train to Falmouth, Truro, and London Paddington, it offers both convenience and connectivity. The town is undergoing an exciting renaissance, with the regeneration of the inner harbour area bringing attractive riverside homes, listed building restorations, and a growing array of dining options. Now a university town shared by Falmouth and Exeter Universities, Penryn has a lively and energetic atmosphere, supported by a range of local sports clubs and community activities. The nearby Penryn Harbour Village development blends historical architecture with modern living, all set close to woodland walks, the river, and the stunning beaches of Cornwall’s south coast. Right on your doorstep are some fantastic independent businesses including 'The Neighbourhood' wine and beverage community bar, 'Pizzeria 42' with over 300 five star Google reviews and 'The Famous Barrel pub' all within a few hundred yards of the apartment. If you fancy a short stroll the towns amenities and the Wharfside businesses are nearby to enjoy a cafe, bakery or a communal office space to work in. Just two miles from the bustling town of Falmouth, Penryn combines heritage, lifestyle, and opportunity in one of Cornwall’s most up-and-coming locations. Penryn Train Station connects the Town to Falmouth or to the City of Truro in the other direction leading onto either Penzance, St Ives or London Paddington in the other direction including other mainline principle Cities.
ACCOMMODATION IN DETAIL (ALL MEASUREMENTS ARE APPROXIMATE)
COMMUNAL ENTRANCE
Phone entry system with staircase rising to the first and second floor where the apartment is located. Solid white panel oak door with ball and chain lock entering into.....
ENTRANCE HALL
Lime washed granite wall, original timber lintel and exposed roof structure. Double glazed French doors onto Juliette balcony and outlook towards the front. Turning staircase to upper floor with galleried ceiling. Large under stairs cupboard housing the electric meter and fuse box. Painted solid oak panelled doors providing access to the shower room, two bedrooms and a sitting / dining room (through to kitchen). Radiator.
SITTING / DINING ROOM
A delightful and sociable room being the heart and soul of the apartment with an impressive apex ceiling providing plenty of character and charm including exposed beams and wooden lintels. Double glazed French doors onto a Juliette balcony facing Southerly and offering lovely views onto the Penryn River and quayside, South Harbour, and the pedestrian bridge and towards Penryn Bridge. Further wooden original shutters with a recessed double glazed window to a similar Southerly facing aspect and view. Two radiators. Power points. Telephone point TV and satellite aerial point. Semi circular wall lights. Remote intercom and front door release. Open access to ….
KITCHEN
Contemporary cream shaker style kitchen with wall and base cupboards. Plenty of worktop surfaces with tiled splashback, an inset 1 1/2 bowl sink with mixer tap and drainer. Integrated dishwasher, undercounter fridge and seperate freezer, built in electric hob and oven with grill and extractor above. Space and plumbing for washing machine. Ceiling spotlights, under unit lighting. Electric wall mounted heater. There is potential to take away the partition wall between the kitchen and living area subject to necessary consents by the management company.
BEDROOM TWO
Southerly facing aspect with view to water and quayside. Generously sized double room. Lime washed stone walls, timber lintel. Radiator, power points and TV point.
BEDROOM THREE
Double glazed window to front aspect. Exposed painted granite wall. Timber lintel. Radiator. Power points.
BATHROOM
Modern shower room with large shower cubicle comprising a glass sliding door, tiling surround, rainfall shower head over and separate handheld attachment. Pedestal hand wash basin, low flush WC, shaver point and ceiling spotlights. Heated towel radiator and extractor fan.
UPPER FLOOR
Half turning stairs to landing, beamed apex ceiling with solid panel oak doors accessing the main bedroom and galleried study area. Power points and central heating thermostat.
BEDROOM ONE
A delightful room partially galleried to the living room with vaulted beamed ceiling with a good head height for the majority of the room. A large double glazed door facing West onto the Juliette balcony, offering stunning views to the end of the Penryn River and beyond towards Penryn viaduct and woodland. Access to eaves cupboard housing Vaillant gas fired central heating and hot water boiler. Additional storage cupboard. Boiler controls and power points.
STUDY/GALLERY
Lovely, interesting space galleried to the living room with apex beamed ceiling and an outlook down to the river. Radiator. Power points.
AGENTS NOTE
The development's dinghy park and slipway is for the use of owners within the Harbour Village development providing access to the glorious waterways of the Penryn & Fal rivers.
TENURE
The leasehold of 999 years from 1999 is vested with Harbour Village Management Company Limited. All owners (together with other owners in the development) are members of and control the company with a share of the freehold. The current service charge (2025) includes the cleaning of the communal parts, maintenance and insurance which in total is £2900 per annum, payable in two instalments biannually of £1450 on 1st January and 1st July. The service charge also includes a contribution towards the upkeep and insurance of the common parts of the development and the dinghy park.
