Hulls Lane, Falmouth, TR11
- 8 beds
- 4 Bathrooms
- 4 Receptions
THE PROPERTY
Hulls house, located on Hulls Lane is just a stones throw from Arwenack street offering a brilliant location for students and young professionals alike. Currently set up as four apartments consisting of 1x1 Bedroom, 2x2 Bedroom and 1x3 Bedroom all with tenants in situ until Summer 2026. Hulls House is owned by a professional landlord with multiple rental properties and will always ensure his properties are maintained to a standard and are well presented with a no nonsense approach. At Hulls house, he has created a fit for purpose, money making machine currently achieving an impressive yield of 10.75% with a gross yield of £69,922 making a great opportunity to acquire a rental property already running with successful yields.
LOCATION
Hulls Lane is a historic part of Falmouth, tucked away yet just a few strides from Arwenack shopping street and the harbourside, with so much of what Falmouth has to offer on its doorstep. The Maritime museum and Events Square, together with an eclectic mixture of fine pubs and restaurants, galleries and independent shops makes Falmouth an exciting place to holiday and for the lucky few, to reside. Junior and secondary schooling facilities are nearby at King Charles and Trescobeas and many faculties of the Combined University of Cornwall are within a few minutes walk along Woodlane. The nearby railway stations at The Dell provides a direct link to the cathedral city of Truro. The town hosts events throughout the year, such as the Falmouth Classics, the Oyster Festival, the celebrations of Falmouth Week and the Sea Shanty Festival.
ACCOMMODATION IN DETAIL
(ALL MEASUREMENTS ARE APPROXIMATE)
COMMUNAL ENTRANCE
Communal entrance. Alarm system for building, CCTV cameras, fire alarms and fire doors throughout. Cupboard housing a boiler for gas central heating and hot water.
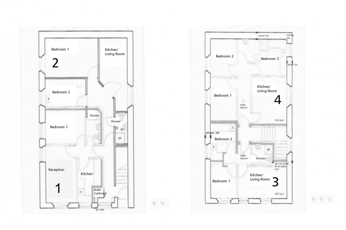
APARTMENT ONE
Entering through a solid wooden fire door into an entrance hall. Fuse box. Fire alarm system. Phone entry system. Wooden fire doors to bedroom, bathroom, kitchen and……
LIVING ROOM - (13' 5" x 7' 7" (4.10m x 2.30m))
uPVC double glazed windows to front and side. Two radiators.
KITCHEN
1.3m increasing to 4.0m x 3.7m High level window to the front with vent. White eye and base level units with wood effect laminate worktop and stainless steel hand wash basin with chrome mixer tap. Separate breakfast bar with wood effect laminate worktop and white eye level cabinets. Space for white goods. Space for electric oven and hob. Tiled splashback. Wood effect laminate flooring.
BEDROOM - (10' 2" x 7' 7" (3.10m x 2.30m))
uPVC double glazed window to side. Radiator.
BATHROOM - (4' 3" x 3' 11" (1.30m x 1.20m))
Three piece white suite comprising W/C, Hand wash basin with chrome taps and electric shower. Laminate flooring. Extractor.
APARTMENT TWO
Entering through a solid wooden fire door into an entrance hall. Fuse box. Fire alarm system. Phone entry system. Wooden fire doors to bedrooms, bathroom and…..
LIVING/KITCHEN/DINING SPACE - (15' 9" x 7' 7" (4.80m x 2.30m))
uPVC Opaque double glazed window to side. White eye and base level units with wood effect laminate worktop and stainless steel hand wash basin with chrome mixer tap. Space for white goods. Space for electric oven and hob. Tiled splashback. Wood effect laminate flooring.
BEDROOM ONE - (14' 5" x 9' 2" (4.40m x 2.80m))
uPVC window to side. Radiator.
BEDROOM TWO - (7' 3" x 6' 7" (2.20m x 2.00m))
uPVC window to side. Radiator.
BATHROOM - (7' 10" x 2' 11" (2.40m x 0.90m))
Three piece white suite comprising W/C, Hand wash basin with chrome taps and Electric shower. Laminate flooring. Extractor.
APARTMENT THREE
Entering through a solid wooden fire door into an entrance hall. Fuse box. Fire alarm system. Phone entry system. Wooden fire doors to bedroom, bathroom and……
KITCHEN/DINING/LIVING SPACE
4.3m x 2.6m reducing to 2.1m. Twin uPVC double glazed windows to side. White eye and base level units with wood effect laminate worktop and stainless steel hand wash basin with chrome mixer tap. Space for white goods. Space for electric oven and hob. Tiled splashback. Wood effect laminate flooring.
BEDROOM ONE - (9' 10" x 8' 2" (3.00m x 2.50m))
uPVC double glazed window to side. Radiator.
BEDROOM TWO - (7' 10" x 7' 10" (2.40m x 2.40m))
uPVC double glazed window to side. Radiator.
BATHROOM - (6' 3" x 3' 7" (1.90m x 1.10m))
Three piece white suite comprising W/C, Hand wash basin with chrome taps and Electric shower. Laminate flooring. Extractor.
APARTMENT FOUR
Entering through a solid wooden fire door into an entrance hall. Fuse box. Fire alarm system. Phone entry system. Wooden fire doors to bedroom, bathroom and……
KITCHEN/DINING/LIVING SPACE - (11' 10" x 10' 6" (3.60m x 3.20m))
uPVC double glazed window to side. White eye and base level units with wood effect laminate worktop and stainless steel hand wash basin with chrome mixer tap. Space for white goods. Space for electric oven and hob. Tiled splashback. Wood effect laminate flooring.
BEDROOM ONE - (10' 6" x 9' 2" (3.20m x 2.80m))
uPVC double glazed window to side. Radiator.
BEDROOM TWO - (9' 2" x 7' 10" (2.80m x 2.40m))
uPVC double glazed window to side. Radiator.
BEDROOM THREE - (11' 2" x 7' 10" (3.40m x 2.40m))
uPVC double glazed window to side. Radiator.
BATHROOM - (5' 3" x 4' 11" (1.60m x 1.50m))
Three piece white suite comprising W/C, Hand wash basin with chrome taps and Electric shower. Laminate flooring. Extractor.
AGENTS NOTE
This property is sold as an ongoing concern with tenants in situ with the following agreements. Apartment 1 - Renewed until July 2027 - £980 plus £60 contribution to bills. Apartment 2 - New tenancy until 27th July 2027- £1,120 plus £60 contribution to bills. Apartment 3 - New tenancy until 17th July 2027 - £1,120 plus £60 contribution to bills. Apartment 4 - Current tenancy until 29th July. New tenants agreed with a move in date of the 7th August. Agreed at £1,980 plus £90 for bills for 2027.
